• +371 29223747
  • +371 29419540
  • Šī e-pasta adrese ir aizsargāta no mēstuļu robotiem. Pārlūkprogrammai ir jābūt ieslēgtam JavaScript atbalstam, lai varētu to apskatīt.

Apkurei

nos.vet.jpg
vent.shema
v80.regulacija

Nosūces ventilators V80

Array
450,00 €

īss apraksts

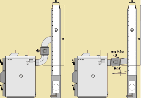
VIGAS 40, 60, 80, 100 un 26DPA katliem